Struxo Services..
STEEL DETAILING
PORTFOLIO
FIRE FIGHTING
About Us
Contact
Contact Info
Plot No: 11, Bharathi Nagar, 7th Street,Sangiliyandapuram,Trichy-620001
0431-4505567
reachus@struxoengineering.com
Portfolio
ASSEMBLY DRAWING BEAM
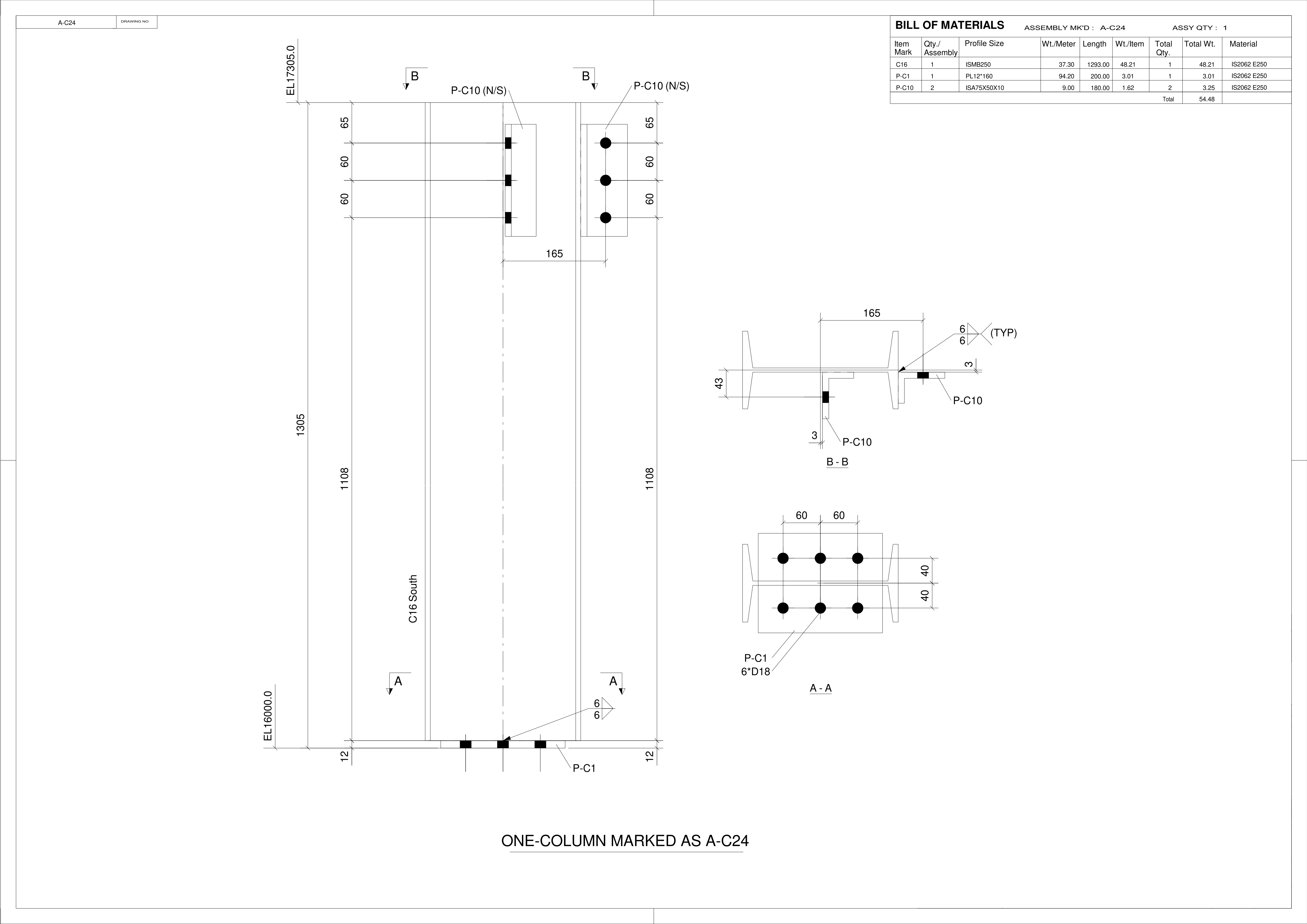
ASSEMBLY DRAWING COLUMN
ASSEMBLY DRAWING HAND RAIL
ASSEMBLY DRAWING STRINGER
ASSEMBLY DRAWING VERTICAL BRACE
ERECTION DRAWING PLAN
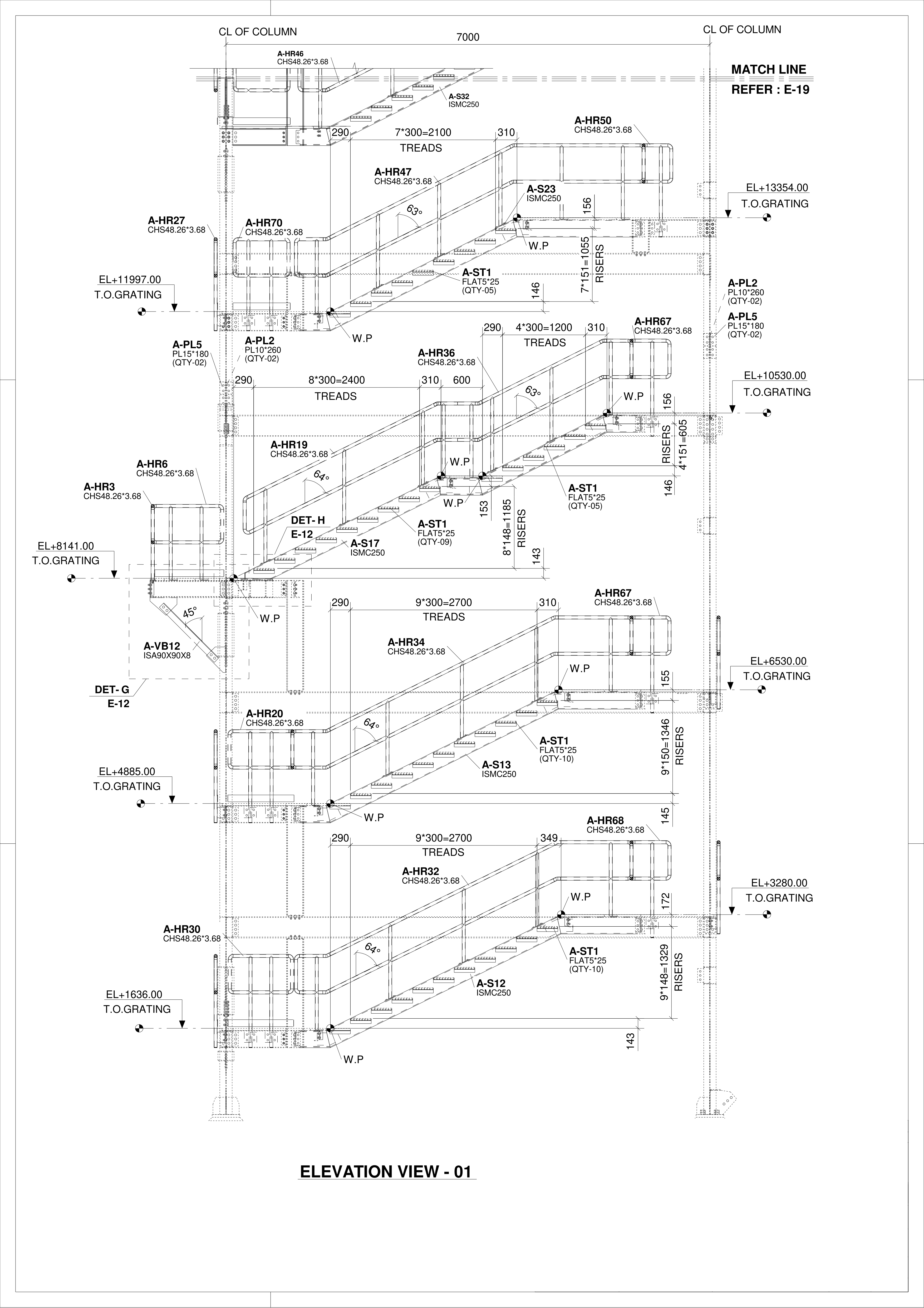
ERECTION DRAWING ELEVATION VIEW
ERECTION DRAWING TYPICAL SECTION
Recent Search Keywords
Safety Tips
Filteration
Accessories
Tools
Design